Stone House at Rocky Farm

Stone House

The adaptive reuse of a 1660's stone sheep hut with an attached mid-1950's two car garage was a small part of a larger restoration project in a national and local historic district. The site, 5.6 acres overlooking Hazard's Beach in Newport, RI, was one of the oldest farms on Aquidneck Island; the farm at one time belonged to the Brenton family and was transferred to the Hazard family in 1704 along with 5,000 sheep. In 1984 the Architect was hired to develop a master plan for the restoration of the main house (built for the head herdsman in 1740) and the development of the landscape for various gardens and related outbuildings. Rather than make any major addition that would be out of character with the main house, the Architect suggested using the stone sheep hut as a small guest house and retaining the garage addition rather than constructing a new one elsewhere on the site.

The opportunity this primitive structure presented was to express the simple, direct nature ofthe existing pre-colonial architecture, unfettered by the styles and tastes imported from Europe during the succeeding years of New England's settlement. The design solution is a reexamination ofthe early New England shelter, two rooms with a central hearth, and takes advantage of southern exposure, a few basic materials combined with uncomplicated detailing, an abundance of natural light, and some important touches of modern technology.

Stone House - exterior
Stone House - exterior
Stone House - exterior
Stone House - living room
Stone House - living room
Stone House - bedroom
Stone House - door
Stone House - driveway
Stone House - Floor Plan
Stone House - Elevation NW
Stone House - Elevation SE
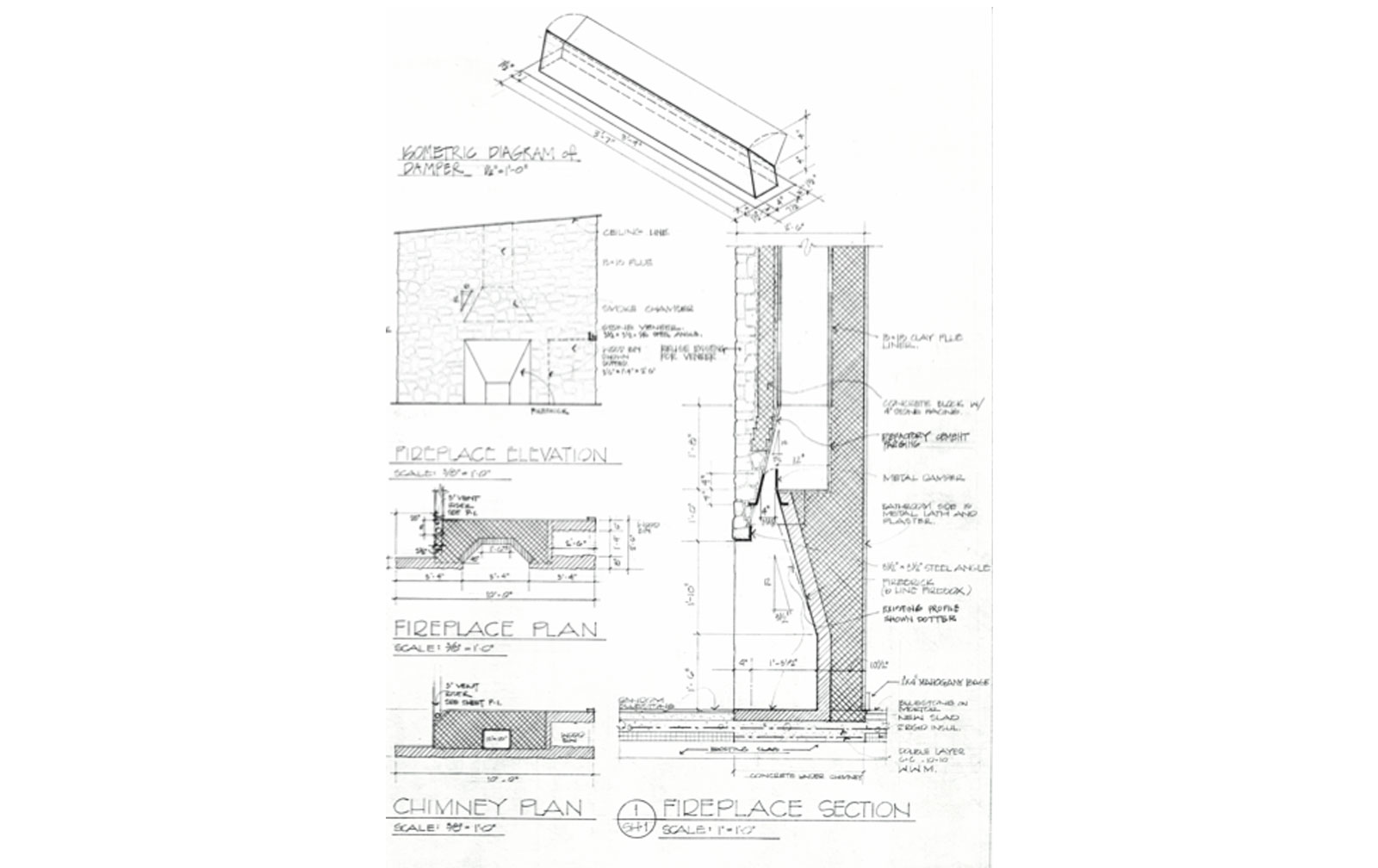
Stone House - Chimney and Fireplace Section